南通奥普机械欢迎您的来访!
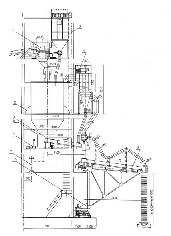
本系统是从仓侧将粉状物料自动输送至散装船的设备。本机具有料位控制灵敏、出料流畅阻力小等优点。该产品还可用于建材系统,其它行业以及冶金、煤炭化工部门粉粒物料装车、装船。
1、CSZ-01库顶进料系统2、CSZ-02库顶收尘系统3、CSZ-03计量系统4、CSZ-04船用收尘器系统5、SCZ-05罗茨风机6、CSZ-06船用散装机7、CSZ-07压缩空气管路系统8、CSZ-08罗茨风机至仓管路9、CSZ-09卸料系统10、CSZ-10旋转机构